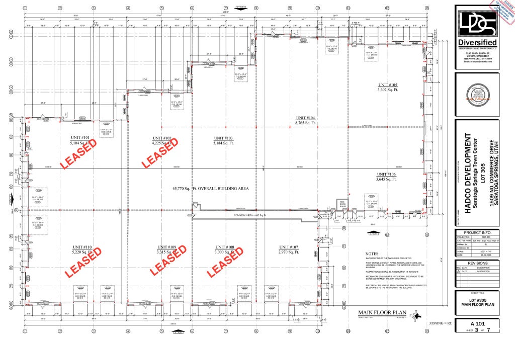
About 1509 N Commerce Dr 305
Brand-new industrial/flex building in the fast-growing Saratoga Springs market. Approximately 24,166 SF available for lease-ideal for warehouse, light manufacturing, or flex use. Half of the building is already leased; don't miss the opportunity to secure your space in this high-demand location. Scheduled for completion in August 2025, the space features modern construction, 20' clear height, 26' peak height, ample power, and flexible layout options. Convenient access to major transportation corridors and a growing labor pool make this an ideal location for expanding operations. Reach out today to customize the space to your needs before buildout is complete.
Features of 1509 N Commerce Dr 305
| MLS® # | 2092900 |
|---|---|
| Acres | 7.76 |
| Year Built | 2025 |
| Type | Commercial Lease |
| Sub-Type | Industrial |
| Status | Active |
Community Information
| Address | 1509 N Commerce Dr 305 |
|---|---|
| Area | Am Fork; Hlnd; Lehi; Saratog. |
| Subdivision | SARATOGA TOWN CENTER |
| City | Saratoga Springs |
| County | Utah |
| State | UT |
| Zip Code | 84045 |
Amenities
| Is Waterfront | No |
|---|---|
| Has Pool | No |
Interior
| Fireplace | No |
|---|
Additional Information
| Date Listed | June 17th, 2025 |
|---|---|
| Days on Market | 138 |
| Foreclosure | No |
| Short Sale | No |
| RE / Bank Owned | No |
Listing Details
| Agent | Scot J Hazard |
|---|---|
| Office | The Real Estate Group |
| Contact Info | 801-789-8000 |
